Большинство стандартных планировок квартир ограничивают жильцов в выборе дизайна и стиля. Предоставляя в их распоряжения крошечные кухни и небольшие непримечательные комнаты. Однако выход есть всегда. И в результате перепланировка квартир уже давно стала любимым занятием дизайнеров интерьера. Сегодня мы хотим рассказать, как современная кухня совмещается с гостиной. А также о преимуществах такого дизайна кухонь-гостиных.

Дизайн кухни, совмещенной с гостиной. Зонирование пространства
Итак, если вы решили отойти от стандартной планировки и выгодно использовать пространство, совмещение кухни с гостиной будет для вас оптимальным решением. Перепланировка с демонтажем межкомнатных перегородок позволит:
- во-первых, увеличить полезную площадь сразу двух комнат;
- во-вторых, зрительно расширить пространство, сделать его более светлым;
- в-третьих, внести в интерьер ощущение легкости и свободы.
Более того, объединение кухни с гостиной решит проблему размещения техники и мебели в интерьере. Так, например, обеденный стол, который обычно занимает большую часть кухни, теперь может стать главным атрибутом гостиной.
Любители комфорта могут совместить процесс приготовления пищи с просмотром любимых шоу на плазменной панели в гостиной. Принимая гостей, теперь не нужно переносить гору посуды с одной части квартиры в другую. Более того, всех посетителей легко можно разместить за столом или на уютном диване в гостиной-кухне.

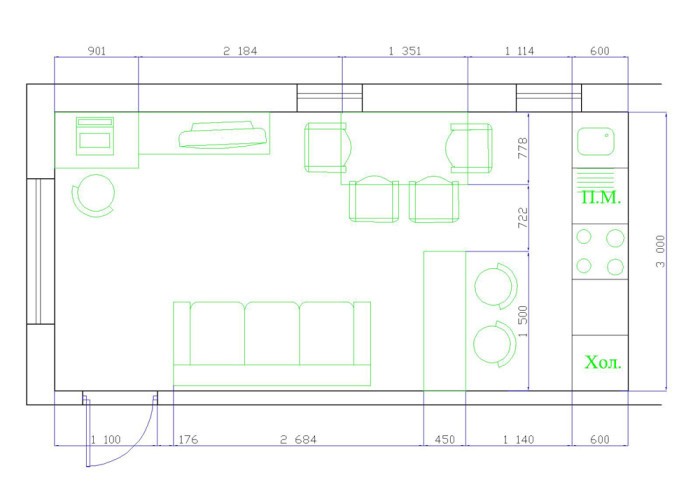
Дизайн, стиль и отделка интерьера современной кухни, совмещенной с гостиной, бывает самым разным. При этом используются приемы условного зонирования интерьера этой новой комнаты. Которое позволяет выделить рабочую зону и зону для отдыха. Вариант зонирования представлен на следующем фото.
Помните, что снос межкомнатной перегородки поможет увеличить пространство только визуально. Поэтому для небольших квартир необходимо тщательно продумать планировку. Оставляя при этом только необходимые предметы мебели и скрывая от глаз лишние кухонные атрибуты.

Кухня-гостиная: основные принципы планировки
Разрабатывая дизайн-проект, стиль и декор интерьера кухни-гостиной, следует придерживаться нескольких принципов:
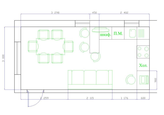
- Для обеспечения комфорта и сохранения практичности помещения современной кухни-гостиной необходимо использовать зонирование интерьера кухни и гостиной. Это может осуществляться как путем применения разных отделочных материалов, так и цветовых решений, игры света, тени или тонов. Также условное разделение может быть выполнено путем установки, например, подиума, барной стойки, ширм или других элементов интерьера. Для этого можно также по-разному оформлять потолок и пол в различных частях нового помещения. Визуальным примером сказанного может послужить следующее фото:

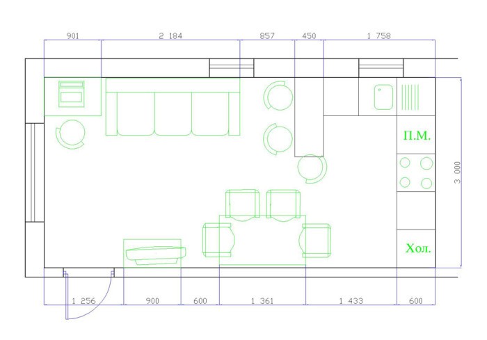
- После демонтажа межкомнатных перегородок кухня-гостиная увеличится только на ширину стены. Поэтому количество мебели должно быть минимальным. Стулья и стол из кухни, как правило, перемещаются в гостиную или столовую зону. Также целесообразно использовать в кухонной зоне встроенную технику. Которая, как это можно увидеть на фото ниже, не только не загромождает светлый интерьер объединенной комнаты, но и выглядит естественно и гармонично.

- Чтобы избежать появления лишних запахов в гостиной, кухонная зона должна быть оснащена хорошей вытяжной системой. Для этого подойдут мощные местные вытяжки (как на фото ниже, например), размещаемые, как правило, на потолке над плитой. И вентиляционные каналы с вентиляторами. Также следует обратить внимание на уровень шума холодильника. Потому что звук работающей техники может нарушить идиллию и подпортить отдых в гостиной.

- Демонтаж перегородок должен осуществляться только после разрешения БТИ или соответствующих инстанций. Потому что несанкционированное удаление несущих конструкций может привести к штрафным санкциям или разрушению здания в целом.
- Дизайн, стиль и отделка современной кухни с гостиной разрабатываются, как правило, в комплексе. Подбираются хорошо сочетаемые между собой в интерьере мебельные гарнитуры, предметы декора, цвет, тон, оттенок и вид отделочных материалов. Освещение в рабочих зонах должно быть более интенсивным. Это можно сделать с помощью, например, дополнительных светильников на потолке, бра или люстры.

Современная кухня-гостиная: оформление интерьера и интересные идеи
Оформление кухни с гостиной может выполняться в едином стилистическом решении или сочетать в себе элементы разнообразных стилей. Например, весьма интересно смотрятся интерьеры с контрастными оформлением и отделкой. Где кухня выполняется в более ярких и насыщенных цветах. А гостиная, напротив, настраивает на расслабление и лирический лад.
Игра света и тени, то есть грамотное освещение в этом месте, – еще один популярный дизайнерский прием. Так, в гостиной можно установить на потолке одну мощную светлую люстру, а в кухонной зоне плоские потолочные или несколько подвесных светильников. В качестве дополнительной подсветки можно использовать, например:
- точечные светильники со светодиодными или люминесцентными лампами;
- неоновые ленты;
- подсветку подиума;
- или встраиваемые в мебель светильники.
В принципе, неплохим примером комбинирования освещения может являться вариант, приведенный на следующем фото.

Хорошо выполняют функции визуальных ограничителей интерьера картины, ковры, подиумы и даже мебель. Кстати, дизайн и планировка кухни-гостиной может предусматривать использование модульной или трансформирующейся мебели.
Например, обеденные столы-трансформеры можно раскладывать во время приема гостей. Увеличивая тем самым рабочее пространство. Также хорошо подойдет встраиваемая мебель, шкафы-купе. Раздвижные системы которых помогут, в принципе, скрыть от глаз массу необходимых в быту вещей.
Читайте также Шкаф купе своими руками

Барная стойка в современной кухне-гостиной выступает одновременно в качестве разграничителя интерьера и дополнительной рабочей зоны. За ней можно выпить чашку кофе, рассадить пару-тройку друзей. Или просто использовать в качестве дополнительной столешницы или раздаточного столика.
Совмещенная гостиная с кухней является очень удобным местом в бытовом смысле. По желанию, ее можно дополнить рабочими уголками, камином и крупными живыми растениями.
Читайте также Как сделать камин своими руками
Телевизор с кронштейным креплением позволит просматривать любимые шоу во время приготовления пищи или в зоне гостиной. Декоративные ширмы, если таковые предусмотрены дизайн-проектом кухни-гостиной, позволят при необходимости быстро отделить рабочую зону от гостиной.

В целом совмещенная гостиная с кухней может быть любой. Оформление данного помещения и подбор цветов применяемых материалов целиком зависят от эстетических предпочтений и потребностей жильцов. Однако дизайн интерьера кухни-гостиной должен быть гармоничным и функциональным.
Мебельные элементы необходимо располагать так, чтобы не загромождать проход и не перегружать пространство. Диваны и кресла для кухни-гостиной лучше подбирать с износостойкой обивкой. Причем поддающейся читке и влажной уборке. Также можно купить стеклянный стол для гостиной. Которым можно облегчить пространство без утраты функциональности и практичности.





















Полезная статья, у самих дома кухня-гостинная, очень важно позаботиться о хорошей вытяжке, иначе запах котлет навсегда останется в вашем диване.
На картинках совмещенная кухня, конечно, красиво выглядит. Но на практике, по-моему, это совершенно неудобно. Запах готовки по всей квартире — это не есть хорошо. Лучше все-таки, чтобы он только в кухне оставался
Давно изучаю приемы зонирования для гостиной и кухни, сделал примерно так как советуют тут получилось шикарно, стало намного уютнее и гостей пригласить не стыдно.